Representaciones de Construcción


Transformamos las ideas en realidad visual con nuestros servicios de diseño gráfico y representación arquitectónica. Desde planos detallados hasta modelos 3D, proporcionamos herramientas visuales impactantes para la comunicación efectiva de los proyectos.
¿Busca visualizar su proyecto antes de la construcción?
Comunicación mediante la representación gráfica de croquis.
Utilización de programas de diseño asistido por ordenador y aplicaciones informáticas.
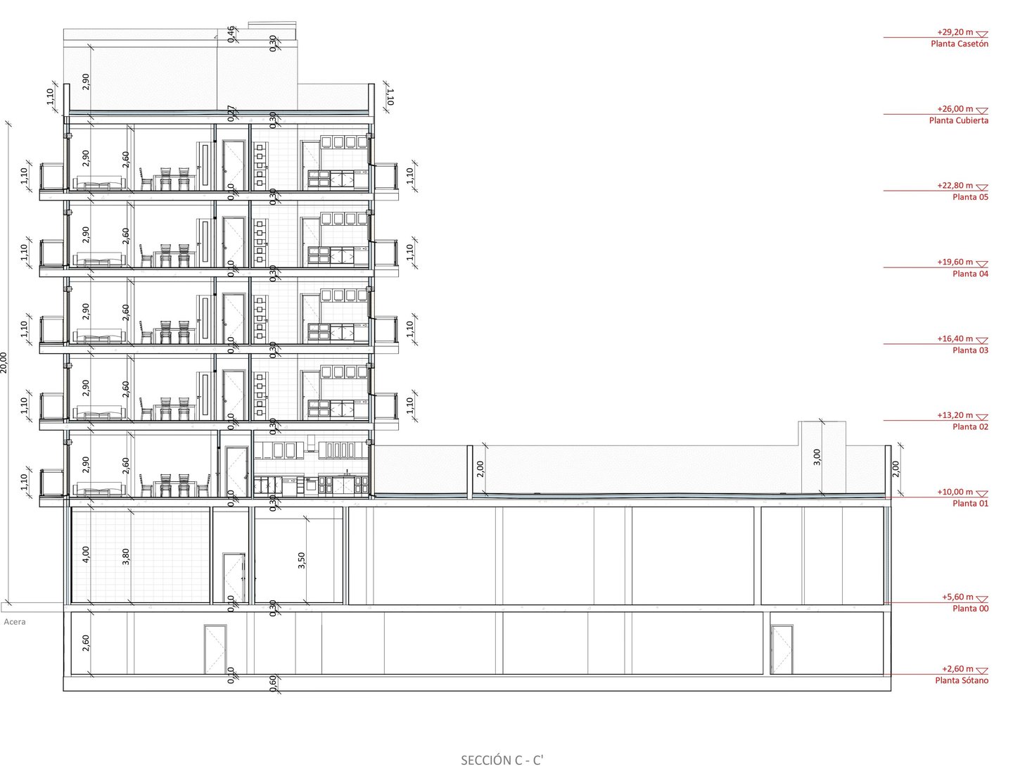
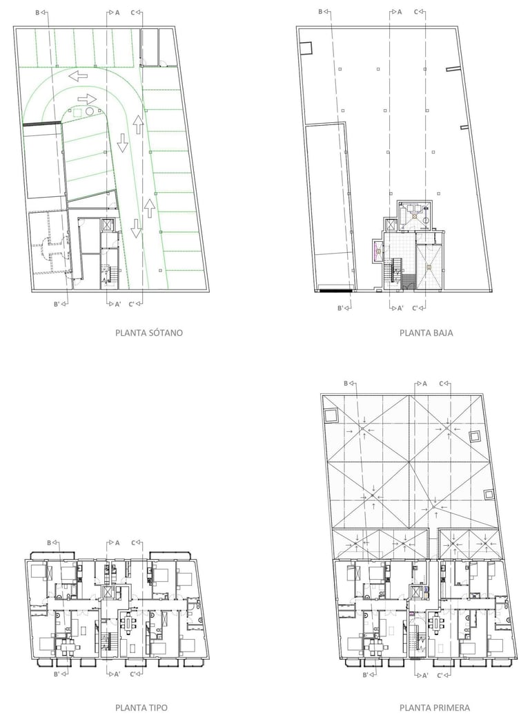
Desarrollo de los planos de proyectos de edificación y obra civil.
Exposición de los proyectos mediante presentaciones y modelos.


AVM Projects
Consultoría experta en proyectos de edificación
Servicios
© 2024. All rights reserved.


